0,16 €
0,13 €
0,07 €
0,06 €
Système de lestage SE1300 pour montage vertical de panneaux photovoltaïques sur toit plat - 10 pcs
produit indisponible
ajouter à la liste de souhaits
Description
Bloc de lest en béton pour montage vertical PV sur toit plat
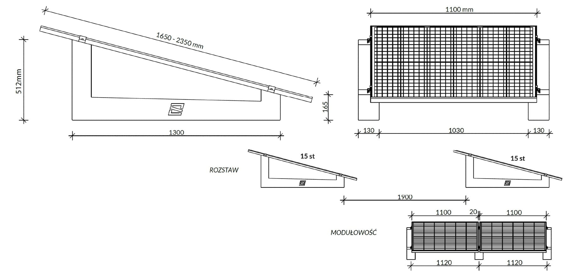
Le bloc de lest GPV-600-02 est un élément préfabriqué en béton en forme de L, conçu pour le montage vertical de panneaux photovoltaïques sur toits plats. Solution idéale pour les entreprises d'installation nécessitant un montage rapide et sécurisé sans intervention sur la structure du toit.

Montage sans perçage – les blocs de lest éliminent la nécessité de percer la couverture du toit. Le poids du béton assure un ancrage stable des panneaux même en cas de vent fort, protégeant l'installation contre les dommages mécaniques.
L'orientation verticale des panneaux permet d'augmenter considérablement la puissance de l'installation sur la même surface de toit par rapport à une disposition horizontale. Le système permet le montage de modules standard ainsi que de panneaux haute puissance, ce qui se traduit par une utilisation optimale de l'espace disponible.
Pourquoi choisir un système de lest ?
- Aucune pénétration du toit : vous conservez l'étanchéité totale et la garantie de la couverture
- Montage rapide : les blocs préfabriqués permettent une installation efficace sans équipement spécialisé
- Universalité : solution idéale pour les toits où le perçage est indésirable ou impossible
- Reconfiguration facile : si nécessaire, l'installation peut être facilement démontée ou déplacée

Paramètres techniques
- Matériau : béton classe C40/50 – haute résistance et durabilité
- Construction : forme en L assurant une répartition optimale des charges
- Modularité : possibilité de configuration pour différentes tailles de panneaux (espacement 1300 mm)
- Normes : projet conforme aux normes de construction strictes pour installations PV

Durabilité et faible maintenance – les systèmes de lest sont conçus pour une exploitation sans défaillance pendant de nombreuses années. Le béton haute performance garantit une résistance aux conditions atmosphériques, et la construction permet un nettoyage facile des panneaux et une maintenance minimale pendant toute la durée d'utilisation.
Ładowanie tabeli porównawczej...
Ładowanie galerii...
Fichiers à télécharger:
Sécurité
Tous les avis (positifs et négatifs) sont affichés, selon la limitation du nombre de plateformes. Nous vérifions qu'ils proviennent de clients qui ont acheté le produit. En savoir plus sur notre page des politiques de commentaires.