0,16 €
0,13 €
0,07 €
0,06 €
Système de lestage SE1200 pour montage horizontal de panneaux photovoltaïques sur toit plat - 16 pcs
produit indisponible
ajouter à la liste de souhaits
Description
Bloc de lestage en béton pour montage horizontal de panneaux PV sur toit plat
Le bloc de lestage en béton est un élément préfabriqué du système de montage destiné à l'installation horizontale de panneaux photovoltaïques sur toits plats. Solution idéale pour les installateurs recherchant un montage rapide sans intervention sur le revêtement du toit.

Pourquoi choisir ce système ? Le système de lestage élimine la nécessité de percer le toit, ce qui préserve son intégrité structurelle et son étanchéité. Le poids du béton assure un ancrage stable des panneaux même par vent fort — sans risque d'endommagement du revêtement de toiture.
La forme caractéristique en L permet un positionnement précis des panneaux à l'angle optimal, maximisant la production d'énergie avec un minimum d'effort de montage.
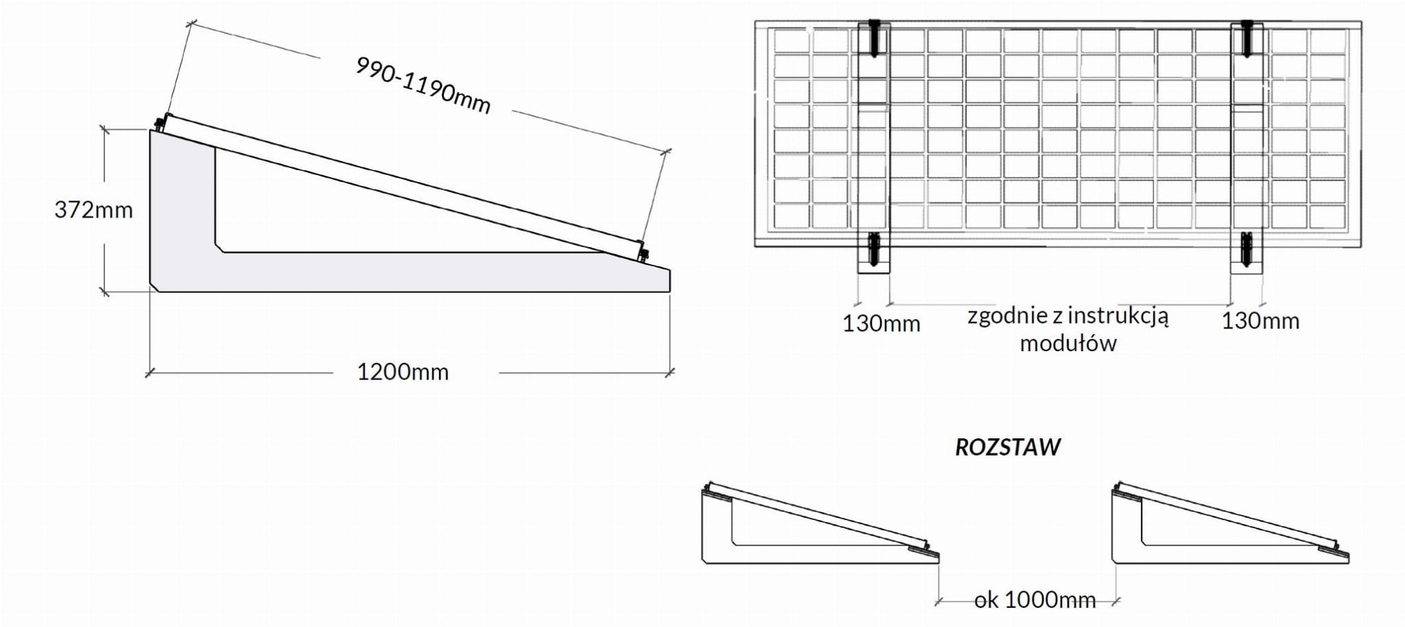
Dimensions et paramètres techniques

- Longueur de la base : 1200 mm
- Hauteur du support : 372 mm
- Largeur du panneau : 990–1190 mm
- Espacement entre blocs : env. 1000 mm
- Distance du bord du module : 130 mm (selon les instructions du fabricant de panneaux)
- Classe de béton : C40/50 — haute durabilité et résistance
Avantages clés
- Sans perçage : montage sans altération du revêtement du toit
- Installation rapide : éléments préfabriqués prêts à poser
- Universalité : compatibilité avec les panneaux de largeur 990–1190 mm
- Durabilité : béton de classe C40/50 garantissant une exploitation de longue durée
- Stabilité : le poids propre empêche le déplacement et le soulèvement par le vent
Application : Le système de lestage convient partout où le perçage est indésirable ou impossible — sur les toits avec membrane, bitume, tôle ou autres revêtements nécessitant le maintien de l'étanchéité. Solution idéale pour les halls industriels, entrepôts et bâtiments commerciaux à toits plats.
Ładowanie tabeli porównawczej...
Ładowanie galerii...
Fichiers à télécharger:
Sécurité
Tous les avis (positifs et négatifs) sont affichés, selon la limitation du nombre de plateformes. Nous vérifions qu'ils proviennent de clients qui ont acheté le produit. En savoir plus sur notre page des politiques de commentaires.